
※本物件データと現況が異なる場合は、現況を優先させて頂きます。
建物は、木造・軽量鉄骨鉄骨瓦・スレート葺
物件名
神子山新田 店舗付き住宅
登録番号
BBZA0030
エリア
宇佐(北部)
住所
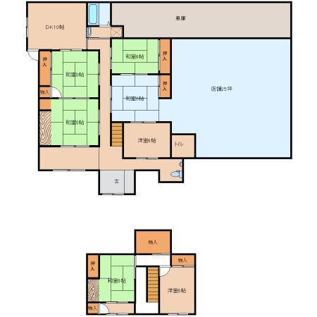
間取り
7DK
築年(経過年数)
1971年10月(54年6ヶ月)
現況
空家
物件種類
戸建
建物構造
木造
階数(階)
2階 / 階建
専有面積(㎡)
303.58㎡
給湯区分
LPガス
電気供給元
九州電力
上水道
市水道引込(買主負担)
賃貸/売買1
売買
売買:価格
600 万円
環境
住宅地
現況
空家
構造材質
木造
引き渡し
相談
取引態様
専任
用途地域
第一種住居地域
地目
宅地
地勢
平坦
都市計画
非線引き区域
最適用途
居住
土地権利
所有権
土地面積
399.98㎡
建物面積
303.58㎡
土地公簿面積(㎡)
399.98㎡
建ぺい率(%)
60%
容積率(%)
200%
道路1方角
北東
駐車場無料台数(台)
2台